Premium Expandable Home E20
Luxury Awaits in Expandable Home E20
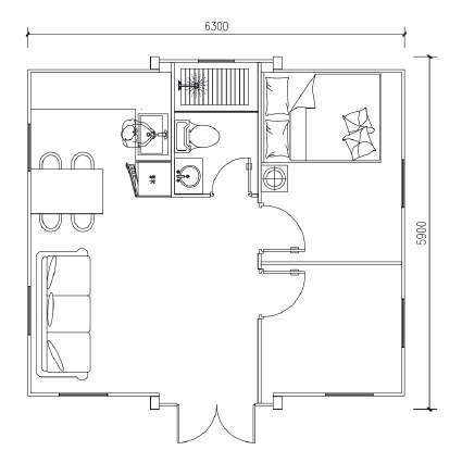
The expansion box, or double-wing folding unit, transforms from one space into three through hinged side extensions. Popular in 20ft size, it’s ideal for offices, accommodations, and homestays. A 40HQ container can carry two 20ft units, making it a top choice for export projects.
Fits 2 units per 40ft container.
Reliable stock for immediate purchase.
Choose from vibrant color shades.
Visual Tour of Our Production Journey
Our Features That Redefine Luxury
Our Expandable Home E20s’ are designed to elevate your experience with exceptional quality and unmatched performance. Explore how this solution redefines convenience and brings lasting value to your everyday needs.
Quick Installation
It can be easily installed on various terrains like beaches, dense forests, or peaks without the need for a foundation. Perfect for diverse outdoor locations.
Eco-Friendly Build
No damage to grass or wood, and zero construction waste, ensuring an environmentally responsible and sustainable design that protects natural landscapes.
Modular Assembly
Quick and easy to assemble, this modular design can be packed into containers for global shipping. Assemble like building blocks for versatile setups.
Quick Installation
Modular Assembly
Innovative Design
Panoramic Experience
Enjoy nature with 360° panoramic windows, solid wood interiors, and superior thermal insulation for comfort.
The Science Behind Our Expandable Home Designs
|
Expandable House E20 Parameters | |||||
|---|---|---|---|---|---|
| Product Model |
20-Foot Double-Wing Expansion Container | Occupied Area |
37m2 | ||
| Folded Dimensionsl |
L5850*W2200*H2480mm | Expanded Dimensions |
L5850*W6300*H2480mm | ||
| Approximate Weight |
3.6T | Layout |
Two bedrooms, one living room, and one bathroom | ||
| | ||||
Configurations Built to Fit Your Needs
| No. | Name | Content | Specification |
|---|---|---|---|
| 1 | Basic Features | External Dimensions (mm) | L5850*W6300*H2480mm |
| 2 | Internal Dimensions (mm) | L5500*W6180*H2200mm | |
| 3 | Folded State (mm) | L5850*W2200*H2480mm | |
| 4 | Frame Structure | Lifting Hooks | 8 lifting hooks of 160*210*160*5mm galvanized lifting hooks |
| 5 | Main Top | 80*120*2.5mm/120*120*2.5mm galvanized square tube | |
| 6 | Main Bottom | 80*120*2.5mm galvanized square tube main frame, with 50*100*1.2mm secondary beams inside | |
| 7 | Side Top | 40*80*1.5mm galvanized P-type tube | |
| 8 | Side Bottom | 60*80*1.5mm/40*80*2.0mm galvanized square tube frame | |
| 9 | Side Wall | 40*80*1.5mm galvanized P-type tube | |
| 10 | Secondary Wall | 40*80*1.5mm galvanized P-type tube | |
| 11 | Folding Hinge | 3 mm welded hinge | |
| 12 | Overall Frame Anti-corrosion Coating | Electrostatic spraying with straight white plastic powder | |
| 13 | Container Roof | External Roof Panel | 50 mm EPS board |
| 14 | Internal Corridor Ceiling | Bamboo fiber board | |
| 15 | Decoration | | |
| 16 | Wall Panel | Main Body | 50 mm EPS board |
| 17 | Side Roof Panel | 50 mm EPS board | |
| 18 | Internal Partition | 50 mm EPS board | |
| 19 | Floor | Middle Floor | 18 mm cement fiber board + 1.6 mm wood grain plastic |
| 20 | Side Floors | 18 mm bamboo plywood + 1.6 mmwood grainplastic | |
| 21 | Seam Connection | Aluminum Plate | 120 mm aluminumplate |
| 22 | Bathroom | | |
| 23 | Kitchen | | |
| 24 | Electrical System | | |
| 25 | Entrance Door | | |
| 26 | Windows | | |





